The Friends of the Clos de la Lombarde : Discover the Site To the Top To the Top
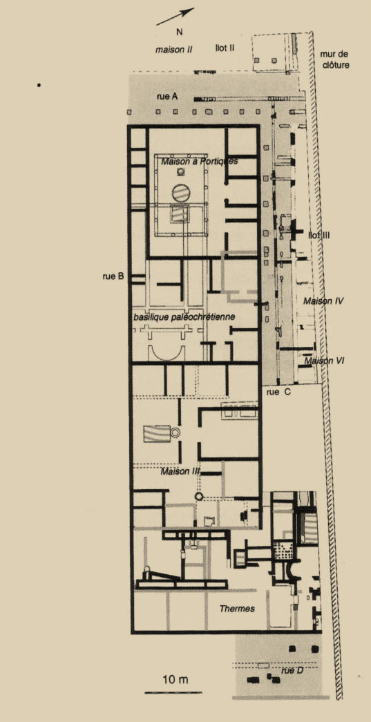
NARBONNE, founded around 118 BC, was the first Roman colony in Gaul and became, in the following century, the capital of the province of Gallia Narbonensis. The province of Gallia Narbonensis consisted of a vast territory covering more than three modern French regions and extended from Lake Geneva to the Spanish border. NARBO (as Narbonne was known at the time), was located on the left bank of the meander of an old arm of the river Aude (Atax), the current Canal de la Robine. NARBO is the name of an indigenous settlement 4 km north-west of the Roman colony. This name was preserved, and the name of the Roman god Mars was added to yield NARBO MARTIUS which was the name of the new foundation, placed on a slight elevation which was equally close to the river, the plain and the littoral lagoon. As the site of the "Clos de la Lombarde" was located on the gardens and vineyards of the DONNADIEU terrain, it is the name of a neighboring place that was given to it from 1973. It was in that year that, during surveys, some interesting remnants of a Roman house (domus) and a paleochristian basilica were discovered. Entirely devoted to archaeological excavation, this site, located 200 meters north of the monumental center of NARBO, would reveal, over the years, the remains of a residential area of the Roman city. In particular, a complete "insula" (city block) was recovered for the first time. An "insula" in Latin, means a set of buildings entirely circumscribed by streets. That of the Clos de la Lombarde measures 23.50 meters X 90 meters. The district in the Clos de la Lombarde emerged during the second half of the 1st century BC. The uncovered city block developed and then remained active until the first half of the third century AD. Towards the end of the 4th century, a suburban church with a surrounding cemetery was built on the site of one of the then disused houses.
Situation du "Clos de la Lombarde"
What is the archaeological site of the "Clos du Lombarde" in Narbonne?
Opening hours : From Thuesday to Friday : VR at 9AM , 11AM, 2PM, 16PM  Site guided visits : 10AM, 15PM On Saturday : Opening hours from 2PM to 5PM VR at 2PM, Site guided visit at 3 PM It is recommanded to book in advance Implantation du site archéologique
VISIT OF THE ARCHEOLOGICAL SITE
We now propose to visit the excavation field of the “Clos de la Lombarde”. To do this, you can either click on one of the links on the map below or click on the links provided by the navigation bar that you find at the top of each page of the site.
STREET A HOUSE  WITH THE  PORTICOES HOUSE WITH  THE LARGE TRICLINIUM GARUM  FACTORY STREET D BATH HOUSE HOUSES 4 AND 6 FULLONICA
PALEO-CHRISTIAN  BASILICA